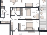
Продается 3-х комн. квартира 133 кв.м. Севастопольская улица, цена 31 699 836₽.
| Стоимость | 31 699 836 |
|---|---|
| Доля в квартире | Нет |
| Балкон | Балкон |
| Право собственности | Застройщик |
| Тип парковки | Подземная |
| Ремонт | Без ремонта |
| Узаконена ли планировка | Есть |
| Есть ли право собственности | Есть |
| Охрана объекта | Да |
| Комнат в квартире | 3 |
| Площадь, кв.м. | 133 |
| Жилая площадь, кв.м. | 49 |
| Площадь кухни, кв.м. | 41 |
| Этаж | 7 |
| Этажность | 12 |
| Санузел | Более одного |
| Тип комнат | Изолированные |
| Материал стен | Монолитный |
| Возможность ипотеки | Есть |
| Населенный пункт | Симферополь г |
|---|---|
| Район города | Центральный |
| Улица | Севастопольская улица |
Продам 3-х комнатную квартиру в ЖК премиум-класса клубного формата с панорамным видом на парк. Общая площадь 133 кв.м., жилая площадь 49кв.м., кухня 41 кв.м., балкон 17 кв.м., 3 санузла, этаж 7/12 . Круглосуточный консьерж-сервис. Лифт с прямым доступом из подземного паркинга на жилой этаж. В квартире панорамное остекление с теплым алюминиевым профилем. Закрытая территория без машин оборудована современными системами безопасности и контролем доступа. На всей территории используется круглосуточная система видеонаблюдения с функцией распознавания лиц и оборудован пост охраны, вход в подъезды через IP телефонию. Есть места для тренировок, фитнес-бар, SPA-центр с сауной и хаммамом, подогреваемый Infinity бассейн, панорамный ресторан и летний кинотеатр, открытый коворкинг и meeting-room. Для детей амфитеатр, экологичные детские и спортивные площадки для разных возрастов и «KIDS-сlub».













